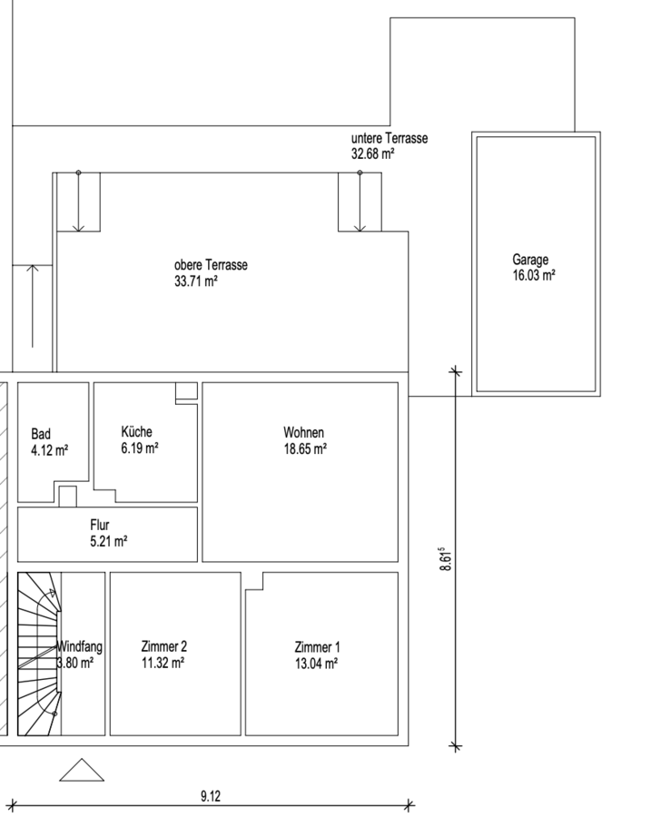
Die zum Verkauf stehende Immobilie wurde 1960 auf einem Grund von ca. 622 m² errichtet. Verteilt auf 2 Ebenen und einer Wohnfläche von ca. 158 m² erstrecken sich 6 Zimmer, zwei Bäder und zwei Küchen. Darüber hinaus ist das Haus vollständig unterkellert. Hier finden Sie ausreichend Abstellmöglichkeiten, sowie eine Waschküche.
Bei Bedarf kann jede Etage als abgeschlossene Wohneinheit genutzt werden. Während die Kinder auf der breiten Rasenfläche Platz zum Spielen und Toben vorfinden, verspricht die Terrasse erholsame Stunden im freien und lädt zum gemütlichen verweilen mit Familie & Freunden ein. Des Weiteren verfügt das Haus über eine Garage und eine lange Einfahrt, auf der Ihre Fahrzeuge Platz finden.
Hinter dem Garten befindet sich die Fahrrad Trasse, die zu einer erholsamen Rad Tour einlädt.






















