Zum Verkauf steht ein 2-Familienhaus in Bottrop-Kirchhellen. Beide Wohneinheiten sind über einen separaten Eingang zu erreichen. Beide Wohneinheiten verfügen über jeweils zwei Etagen.
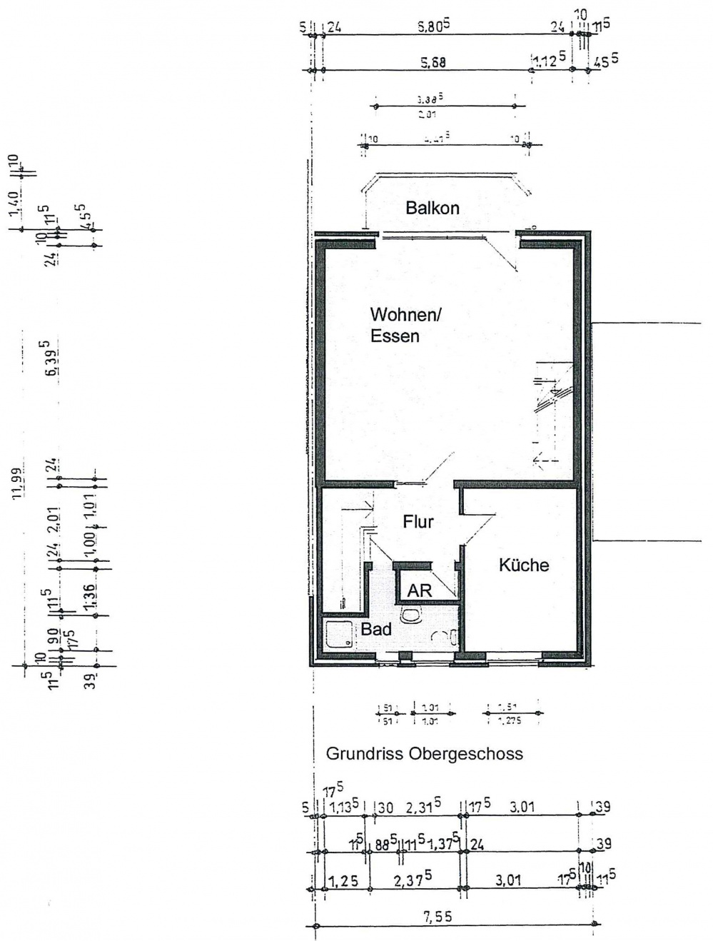
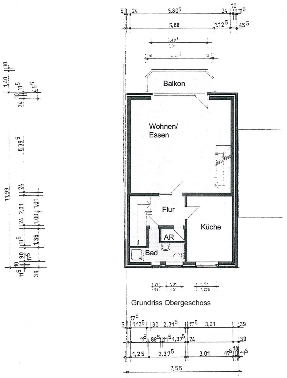
Zu der Erdgeschoss-Wohnung, in Verbindung mit dem Souterrain, gehört ein Garten mit Terrasse. Die Wohnung im Obergeschoss, in Verbindung mit dem Dachgeschoss, hat einen Balkon.
Beide Wohnungen bestechen durch ein großes Wohnzimmer. Jeweils im Souterrain bzw. im Dachgeschoss befinden sich das Badezimmer und die Schlafzimmer, die sich durch eine in der Wohnung befindenden massiven Treppe erreichen lassen.
Neben einem modernen Badezimmer verfügt jede Wohneinheit zusätzlich noch über ein Gäste-WC. Beheizt werden die Wohnungen über eine Gas-Zentral-Fußbodenheizung.
Des Weiteren stehen direkt vor der Tür zwei Stellplätze, sowie eine Garage zur Verfügung.



















