Zum Verkauf steht dieses gepflegte voll vermietete Mehrfamilienhaus in Gelsenkirchen-Buer. Die Immobilie liegt in einer ruhigen Seitenstraße. Die Innenstadt von Gelsenkirchen-Buer ist von der hier angebotenen Immobilie in ca. 10 Minuten fußläufig zu erreichen. Alle Geschäfte des täglichen Bedarfs sind umliegend vorhanden und die nächste Busstation ist etwa 5 Gehminuten entfernt. Die Kaltmiete der Immobilie beläuft sich auf 12.840,- € p.a.
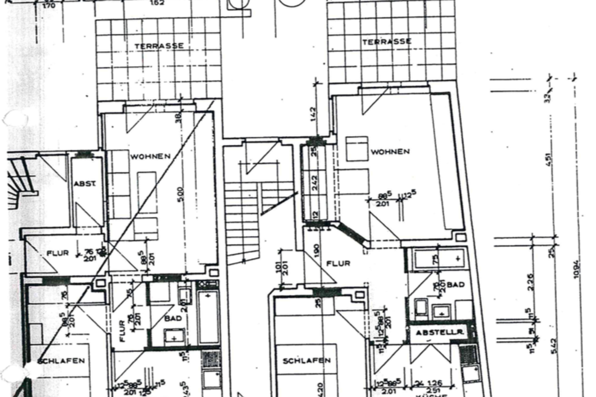
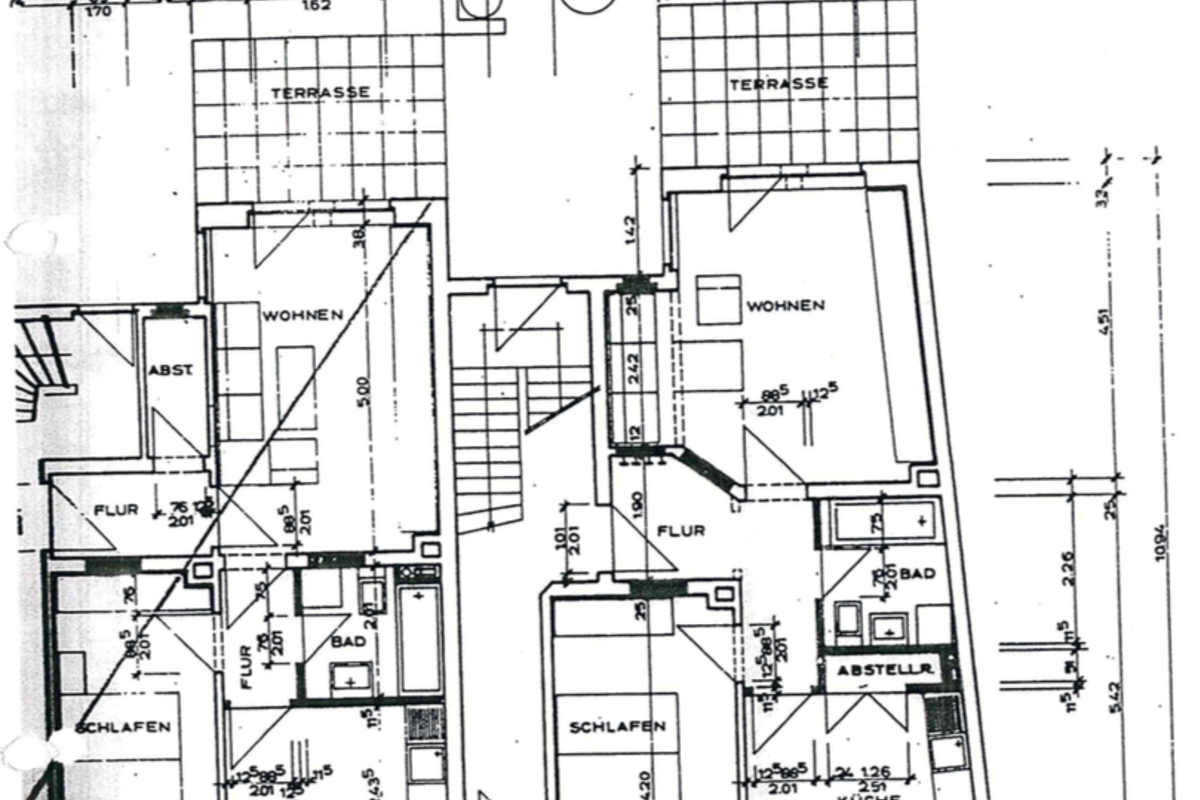
Wenn es mal zu einem Mieterwechsel kam, konnten die Wohnungen immer nahtlos neu vermietet werden. Bei den Wohnungsfotos handelt sich um die Wohnung in der 1. Etage (die aber vermietet ist).
